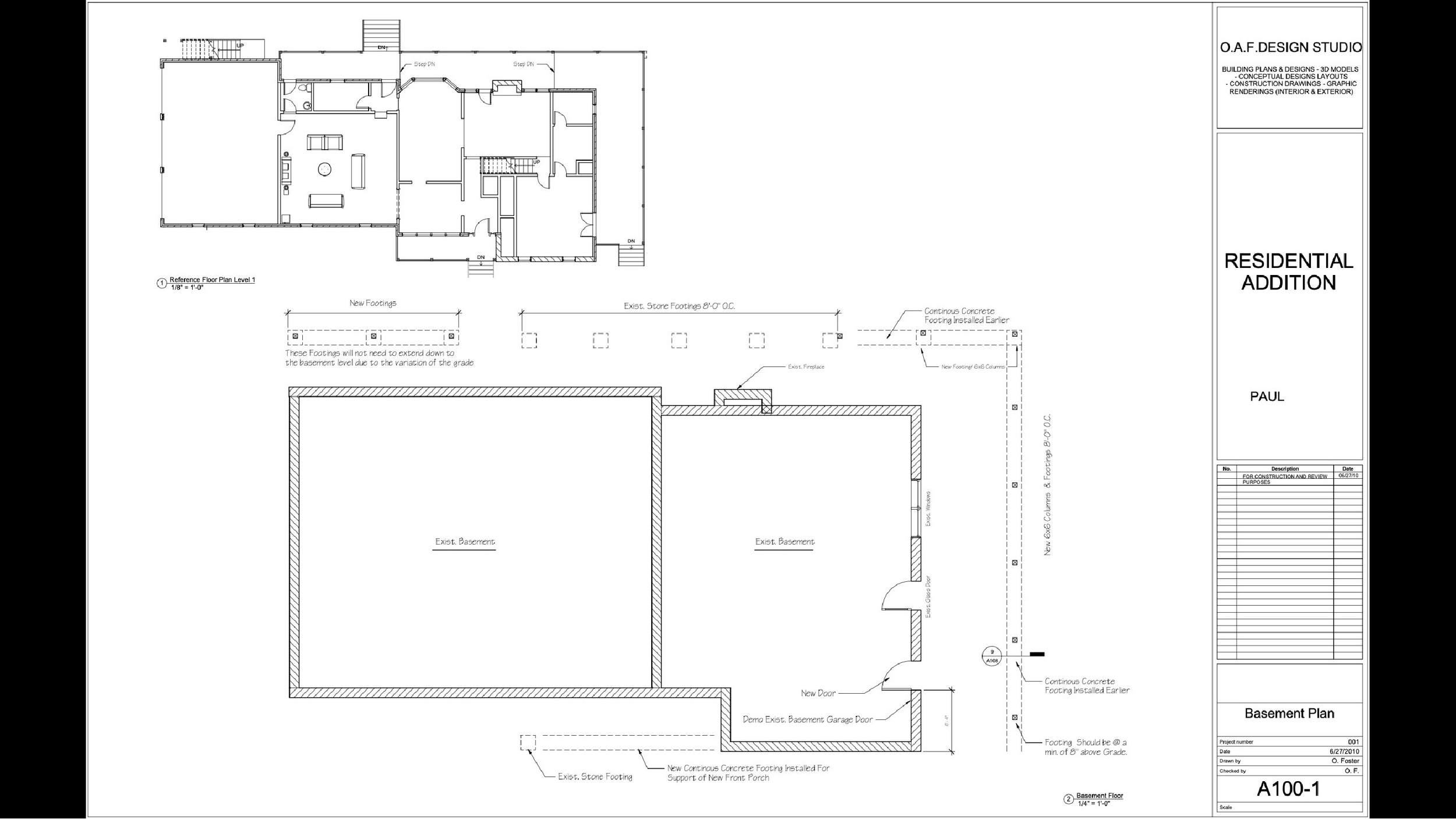
The Doctor’s House - Doc Lindo’s House Reno.

I worked in an Architectural Firm while attending college and got laid off in 2009 during the Great Recession. The firm I worked in did large institutional and commercial projects. At the time I was working as a member of the team assigned to the Atlanta airport. I was commissioned to do this house renovation project almost immediately after my graduation. This was my first independent residential project. I had the requisite skills to complete the project even though I lacked real-world residential experience. This was a great learning experience of completing a project on my own. This project gave me the first opportunity to interact with the governmental offices responsible for the permits involved in the building process for a dwelling in a small Georgia town. I am extremely proud of this project for the fact that at the time the owner of the house had young children in middle school, and this house became their home through all of middle school, high school, and the home they said goodbye to before they departed for college, and eventually adulthood.

Client
Doctor’s home as primary family dwelling - Drawings done in Autodesk Revit.

Year
2010